서비스 핫라인

023-71493456

업계 정보
현재 위치: 홈페이지>업계 정보

세계 최초의 그리드 슬롯 추천 커튼월은 어떻게 구현되었습니까?

조회수: 116 업데이트 시간: 2020-12-15117

 

고인이 된 여성 건축가 자하 하디드가 디자인한 마카오의 랜드마크 모르페우스 호텔


비용 11억 달러(65억 위안에 해당)

최종 프레젠테이션은 다시 한번 세계를 놀라게 했습니다

건물 전체가 자유로운 형태의 외골격을 가지고 있습니다

주변 건물들 사이에서 눈에 띄세요


1png



전체 프로젝트에서 가장 어렵고 시각적으로 인상적인 프로젝트

틀림없이 안쪽으로 휘어진 하늘 다리입니다

멀리서 바라보며

전체 모양이 상식을 깨는 각도로 거의 뒤틀려 있습니다

구현의 어려움이 분명함


2png




01

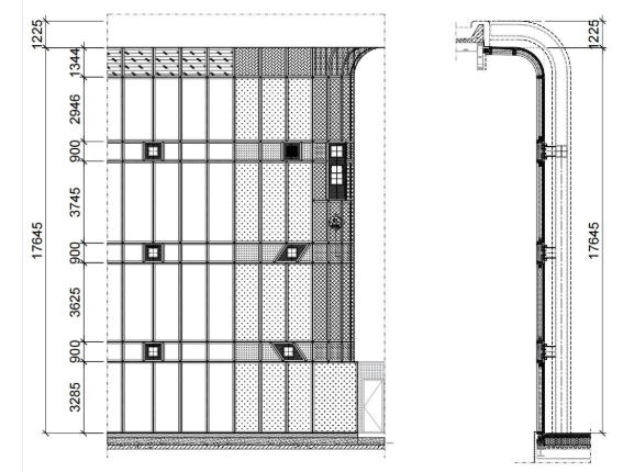
프로젝트 개요

전체 프로젝트의 높이는 1548m이며 총 43층입니다

커튼월 면적은 약 45,000㎡입니다

전체 모양은

알루미늄 판으로 덮인 경사력을 견디는 격자 프레임은 외부에 뼈대가 있습니다

유리 커튼월이 내부에 결합되어 있습니다

건물 중앙의 부드러운 곡면

3개의 불규칙한 구멍이 전환됨


3png




콘크리트 코어를 둘러싼 메쉬 강철 슬롯 추천인 외골격

전체 모양이 매우 독특합니다

5개의 서로 다른 유리 패널이 재료로 사용됩니다

그리고 시각적 효과를 강화하는 쌍곡선 알루미늄 판

또한 건물 내부에 필요한 슬롯 추천물의 수를 줄입니다



4png





이동1gif

프로젝트의 디자인 영감은 다음에서 나옵니다

중국 전통 옥 조각의 부드러운 곡선

건물의 바람 같은 모양도 건설의 난이도를 결정합니다

통계에 따르면

이 프로젝트에는 총 약 28,000톤의 강철이 사용되었습니다

에펠탑 4개와 동일

48,000제곱미터의 유리를 동시에

"모나리자의 미소"를 120,000장 담을 수 있을 만큼

철근 콘크리트 70500제곱미터

모두 합하면 약 28개의 올림픽 규격 수영장을 초과합니다



6png

이동 2gif



02

커튼월 디자인 특징

(1) 프로젝트의 그라데이션 그리드 뼈대는 건물의 가장 바깥층에 위치하고 유리 커튼월은 그리드 뼈대 내에 있습니다


(2) 레이어와 가시 영역 사이에 별도의 설치 모드를 채택하여 서로 다른 단위 패널을 구성합니다 중간층 패널과 슬롯 추천는 4개 지점에서 지지됩니다 가시형 패널은 실내에서 설치가 가능하며, 두 개의 중간층 패널 사이에 삽입되고, 다음 층의 중간층 패널 위에 구축될 수 있습니다

7png



(3) 철슬롯 추천물 코벨의 층간단위판은 분할된 반판으로 설계하여 건설현장에서 직접 조립, 고정, 밀봉하여 방수가 확실하게 이루어진다

(4) 모서리에 있는 작은 반경의 곡선 호판의 경우 잔물결이 나타나지 않도록 패널의 정확도를 엄격하게 제어해야 합니다 동시에 성능을 보장하기 위해 굽힘 프로파일과 가공 및 조립의 정확성도 제어해야 합니다

 
8png



(5) 중앙 위치는 모두 특수한 모양의 단위 플레이트이며, 그 중에는 꼬인 단위 플레이트가 많이 있습니다 모든 패널은 비틀림 곡선으로 만들어져야 하며 프로파일 프레임은 모두 동일 평면이 아닌 직선 접합입니다


9png


03

대형 커튼월의 기술적 분석

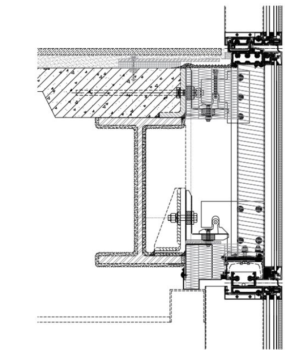
이 프로젝트의 슬롯 추천 격자는 커튼월 외부에 있으며 주요 강철 슬롯 추천물은 커튼월의 유리 표면에서 불과 400mm 떨어져 있습니다 유닛 본체 전체를 설치할 수는 없습니다 유닛본체는 눈에 보이는 부분과 층간부분으로 높이방향으로 2개의 유닛으로 분해되어야 합니다 그림 2와 같이 중간판을 먼저 설치한 후 가시판을 설치합니다


10png


▲슬롯 추천 2 유닛 설치 과정도

11png

중간 유닛 플레이트 설계

이 디자인은 4개의 걸이 지점을 사용하여 슬롯 추천가 안정적이고 실행 가능하도록 보장합니다 상부 빔은 일반적인 수평 슬라이딩 유닛 커튼월과 일치하며, 하부 빔은 그림 3과 같이 두 개의 완전한 실링 라인으로 설계되었습니다

12png

▲슬롯 추천 3 중간층 섹션



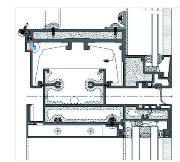
층간 유닛 본체의 표준 상단 노드의 경우 설계 특징은 다음과 같습니다: 눈에 보이는 판이 층간 판에 떨어지며 왼쪽 및 오른쪽 한계에 주의하십시오 제한 방법은 기둥 벽이 보의 미리 설정된 간격에 스냅되어 왼쪽과 오른쪽에 2mm의 이동 범위를 남기고 슬롯 추천 4에 표시된 것처럼 보이는 플레이트가 지지점 주위로 이동할 수 있다는 것입니다


13png


Δ슬롯 추천 4 Interlayer 표준 상위 노드



중간 단위 본체의 표준 하단 노드의 설계 특징은 다음과 같습니다 보이는 판을 설치할 때 L 코드가 필요하지 않은 위치, 즉 그림에서 파란색으로 표시된 부분에서 L 코드보다 약간 큰 간격을 잘라냅니다 L 코드가 삽입되어 필요한 위치(양쪽 끝 + 중앙)로 미끄러지며, 양쪽 끝의 L 코드는 슬롯 추천적 지지를 제공하고, 중앙의 L 코드는 밀봉 시트가 휘어지는 것을 방지합니다 고무 스트립을 사용하여 전체 길이 밀봉 조각을 삽입하고 밀봉 조각 사이에 밀봉제를 도포하여 연속 밀봉 스트립을 형성합니다 그림 5와 같습니다



14png

▲슬롯 추천 5 레이어 간 표준 위치 아래의 노드


15png




중간 플레이트 설계에서는 코벨의 플레이트 계획이 특히 중요합니다 기존의 슬롯 추천적 코벨로 인해 이 플레이트는 현장 도킹 유닛용 빔으로만 분할될 수 있으며, 유닛과 코벨 사이의 방수는 현장에서 설치됩니다 그림 6과 같이 빔이 집중된 힘을 받는 것을 방지하기 위해 가시 플레이트의 기둥 위치에 펜던트가 있는지 확인하십시오

16png



Δ슬롯 추천 6 노드 및 코벨의 3차원 다이어그램



보이는 단위 블록 디자인

17png

눈에 보이는 판의 하단은 중간판에 안착되고 상단은 중간판에 붙어 있습니다 부착 지점이 없습니다 외부에 슬롯 추천적 그리드가 있기 때문에 그림 7과 같이 유리는 실내에서만 교체할 수 있습니다 이 디자인에는 주목해야 할 몇 가지 중요한 사항이 있습니다

(1) 플레이트는 카드 슬롯을 통해 왼쪽과 오른쪽으로 제한됩니다

(2) 커튼월에 수직인 거싯의 경우 태풍으로 인해 거싯이 떨어지는 것을 방지하기 위한 기계적 보호가 필요합니다


04

프레임워크 시스템 기술 분석


18png




이 프레임 시스템은 외골격 그리드를 기반으로 한 강철 프레임 용골의 작은 단위 시스템입니다 최대 경간은 폭 8m×높이 12m입니다 그림 10에 표시된 대로 연한 파란색은 눈에 보이는 판이고 진한 파란색은 그 뒤에 있는 슬롯 추천 판입니다

철골 프레임의 레이아웃과 최적화가 이 시스템의 초점입니다 횡용골은 주요 힘을 지탱하는 용골이고, 수직 용골은 2차 힘을 지탱하는 용골입니다 외부 뼈대 그리드에 지지점을 확장하여 그리드 폭을 8m×47m로 줄였습니다 세부적으로 말하면, 소형 유닛의 접합 각도 45°의 워터 컷팅 설계는 이 프로젝트의 필수적이고 의무적인 조치입니다 프레임의 디자인 컨셉은 슬롯 추천 9~12에 나타나 있다


19png


▲슬롯 추천 8 3D 프레임 다이어그램

20png

▲슬롯 추천 9 철골 배치(1/4 영역)

21png

Δ슬롯 추천 10 High-span 샘플

22png

Δ슬롯 추천 11 철골 유닛 시스템

23png

▲슬롯 추천 12 3위치 다이어그램
24png