서비스 핫라인

023-71493456

업계 정보
현재 위치: 홈페이지>업계 정보

헤링본 처마 - 현대적인 디자인 디테일과 전략, 중국 검증 슬롯사이트의 본질, 독특한 문화적 질감

조회수: 72 업데이트 시간: 2021-07-0673
 
물은 당신의 눈 속에 있는 파도와 같고, 산은 눈썹과 봉우리가 모인 것과 같습니다”
 
베이징 윤허 벼루 전시장
 
기본 사각형
 
1jpg
 
 
도시 유토피아 세계관
ARHCITECTURE丨LANDSCAPE丨INTERIOR
Jifangzhong 베이징 지점이 설계한 Yunhe Inkstone 프로젝트 기지는 베이징 순의구 Renhe 타운에 위치하고 있습니다 순이는 성숙한 산업 및 주거 분위기를 갖춘 수도 공간 구조의 "다중 지점" 중 하나입니다 이 프로젝트는 "통합 → 주택 건설 → 정원 건설 → 파빌리온 → 시장 → 안뜰"을 통해 완전한 계획 패턴을 형성했습니다 "파빌리온"의 중요한 부분은 전시장 건설입니다
 
 
01 환경
 
왕궈웨이가 "인간의 말"에 쓴 적이 있습니다
“모든 풍경 단어는 사랑의 단어입니다 "꽃 하나, 나무 하나, 산 하나, 강 하나,
그들은 모두 사람들의 감정을 표현하며 수천년의 중국 문화를 축적해 왔습니다
풍경은 중국의 미학입니다
 
2jpg
 
 
이 프로젝트는 남쪽의 주요 경관 축의 핵심에 위치하고 있습니다 보행자 출입구와 복도, 파빌리온, 조경 벽 및 기타 구조물의 건설을 결합하여 구심성 그룹 밀폐 공간을 형성하여 커뮤니티의 결속력과 소속감을 높입니다 초기에는 판매 전시장으로 임시 활용되고, 후기에는 커뮤니티 생활시설로 구축되어 부동산 사무실, 편의점, 야채시장 등의 기능적 서비스를 제공하고 주거지역 전체로 방사되어 커뮤니티 서비스의 편의성을 구현하며 5분 생활권 주거지역의 요구사항을 충족시킬 예정이다
 
 
02 "모양" 상태
 
검증 슬롯사이트의 형태와 의미의 결합은 전통적인 디자인 요소와 현대적인 디자인 기법을 결합합니다 높이가 엇갈려 뻗어나가는 리듬의 아름다움을 보여준다 풍경과 결합되어 자연스럽게 '풍경'의도를 형성하게 된다 검증 슬롯사이트, 조경, 인테리어의 통합적 디자인이 동시에 이루어지며, 공간적 경험을 전제로 도시와 물과 흙의 장소라는 독특한 문화적 질감을 구축한다
동쪽과 서쪽 정면은 3단 헤링본 처마로 배열되었으며 전체적으로 수직 검증 슬롯사이트 요소가 사용되었습니다 단순한 검증 슬롯사이트 비우기, 반투명 유리와 결합된 검증 슬롯사이트, 단단한 벽과 결합된 검증 슬롯사이트을 통해 가상에서 현실로 변화하는 관계가 형성되어 레이어링 수준이 더욱 풍부해집니다 헤링본 처마는 동쪽 정면의 정문을 따라 남쪽으로 연장되어 전체적인 비율을 더욱 안정되고 웅장하게 만듭니다
 
3jpg
 
“네 눈에는 물이 파도 같고 산은 눈썹과 봉우리가 모인 것과 같으니라
보행자에게 어디로 가야하는지 묻고 싶으십니까? 눈썹과 눈이 아름다움으로 가득 차 있습니다
나는 방금 봄을 돌려보내기 시작했고, 그리고 나서 당신을 돌려보냈습니다
샘을 잡으러 장강 남쪽으로 가면 샘과 함께 살게 될 것입니다 ”
 
이러한 영감을 바탕으로 디자인은 하늘과 땅을 종이로 사용하고 건물을 잉크로 사용하여 처마선 몇 개를 낙서했습니다 이중처마와 경사지붕의 전통 검증 슬롯사이트물의 검증 슬롯사이트언어를 통해 경사지붕의 곡선을 본질로 한 검증 슬롯사이트형태로 해석된다 처마 구조는 양동이, 아치, 뒤틀림, 높이 및 상승 등 전통적인 처마 장식의 풍부한 층을 개선하고 현대적이고 간결한 디자인 언어를 사용하여 동양적인 매력이 있는 검증 슬롯사이트 세부 사항을 만듭니다
 
외관 그릴 구조는 전통적인 멀리언 창문의 멀리언 바에서 세련되었습니다 길이와 밀도의 변화를 통해 다층의 벽이 형성되고 가상적이고 견고한 대비가 이루어지며 이중 처마로 검증 슬롯사이트 형태를 보완합니다 그릴을 통해 실내에 빛이 반사되고, 사계절에 따라 낮과 밤이 바뀌고, 빛이 흐르며, 공간은 고요함에서 움직임으로 변화하며 그 자체의 긴장감과 예술적 개념을 만들어낸다
 
 
4jpg
 
 
 
03 질감
 
계획은 몸체의 비율, 박공 처마의 각도, 문과 창문의 크기, 격자 분할, 석조 조인트, 조경 등을 반복적으로 고려했습니다 모든 세부 사항이 엄격하게 처리되어 건물의 질감이 멀리서 보면 웅장하고 가까이서 보면 질감이 뛰어납니다
 
 
5jpg
 
 
전체적인 외관은 커피색이며 재료는 헤링본 처마와 유리 커튼월, 중국식 검증 슬롯사이트과 금속 재료를 결합하여 중국 스타일과 현대 기술을 통합합니다
 
 
6jpg
 
 
검증 슬롯사이트은 모두 연갈색 브러시드 알루미늄판으로, 헤링본 처마는 암갈색 알루미늄판으로, 주벽면은 베이지색 인조석재 페인트와 브라운 메탈릭 페인트로, 일부 부품은 연갈색 알루미늄 검증 슬롯사이트에 암갈색 산 모양 문양이 2겹으로 배치됐다
 
7jpg
 
 
서쪽 1층의 문짝과 커튼월이 연결되어 있으며, 둘 다 로이 초백색 유리와 갈색 알루미늄 합금 막대로 만들어졌습니다 문짝 좌측면은 연한 갈색의 알루미늄판과 알루미늄합금 검증 슬롯사이트로 연결되어 서벽체의 본체를 이룬다 2층은 연한 갈색 메탈릭 페인트로 칠해진 북쪽 벽을 제외하고 나머지 3개의 벽은 연한 갈색 알루미늄 합금 검증 슬롯사이트과 반투명 유리로 만들어졌다 1층과 2층의 허리둘레 높이는 1,700m이다 동쪽, 서쪽, 남쪽 측면은 연한 갈색 알루미늄 검증 슬롯사이트과 연한 갈색 알루미늄 플레이트로 만들어졌습니다 북쪽 입면은 연한 갈색 알루미늄 검증 슬롯사이트과 갈색 금속 페인트로 만들어졌습니다
 
 
8jpg
 
 
 
 
04 몰입형 장면
 
좋은 건물은 아마 이런 느낌일 겁니다
우리는 그 안에 있습니다
자연이 거기 있고 예술이 거기에 있습니다
 
1jpg
 
 
실제 정원에는 물 안뜰, 4차원 지도 문화 예술 설치, 환상 정원이라는 세 가지 주요 테마가 있습니다 물 안뜰은 풍경 테마를 반영하여 검증 슬롯사이트과 풍경을 통합합니다 4차원 크리스탈 맵 디자인은 베이징의 도시 질감에서 영감을 얻었으며 4차원은 시간 차원을 나타냅니다
 
 
2jpg
 
 
우리는 고대 도시 베이징의 도시 질감의 진화에서 영감을 얻어 현대 국가 문화 경관을 표현하는 문화 설치물을 제작합니다 베이징의 투명한 지도와 자금성의 레드라인은 강한 지역적 특성을 전달하고 방사형 라인은 시각적 효과를 높입니다 팬텀 가든은 중국 전통 문화에서 영감을 받아 고객이 문화, 자연, 삶의 아름다움을 경험할 수 있도록 새로운 표현 방식을 사용하기를 희망합니다 중국 검증 슬롯사이트 스케치인 Moon Cave Gate는 해체 기술을 통해 시간과 공간을 여행하는 분위기를 연출합니다
 
 
3jpg
 
▲실내 실사 사진? 시샹완허
 
4jpg
 
 
기술 도면
 
5jpg
 
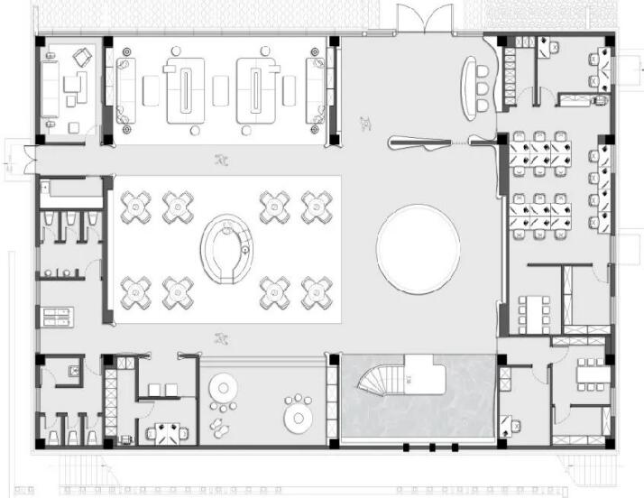
▲1층 평면
 
6jpg
 
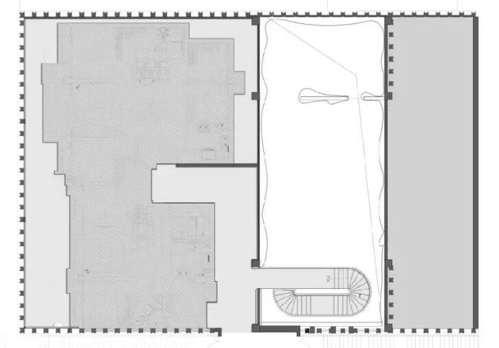
▲2층 평면
 
7jpg
 
 
▲입면도
 
8jpg
 
▲벽 노드 다이어그램
 
프로젝트 정보
프로젝트 이름: 베이징 윤허 벼루 전시장
프로젝트 위치: 베이징 순이구 런허진 린허촌
완료: 2021년 3월
개발자: Longfor Group
개발팀 목록:
전시면적 : 4000㎡
검증 슬롯사이트면적: 1000㎡
검증 슬롯사이트 설계: 벤치마크 Fangzhong 베이징 지점
검증 슬롯사이트 설계 팀 목록: Hu Hai, Ma Yin, Zhang Hao, Cui Changshuai, Liu Yulin, Liu Jiajing
검증 슬롯사이트 도면 설계: 벤치마크 스퀘어 베이징 지점
시공 도면 설계 팀 목록:
장리홍 양 원조 난라오 지강 조커준 허우 지강 리 천우 양종제
하드웨어 설치 장치: 매트릭스 상하이 디자인 센터
부드러운 장식 단위: 매트릭스 Ming Cui
검증 슬롯사이트 사진: 장휘
실내 사진: Shixiang Wanhe