
우리는 공간이 활력을 보여주고 움직이는 풍경화와 같기를 바랍니다 여기서는 자유롭게 걸을 슬롯 카지노 사이트고 잠시 멈춰서 감상할 수도 있습니다 친구들과 함께 숲속을 산책할 슬롯 카지노 사이트을 뿐만 아니라 혼자서도 오랫동안 잊혀진 여가를 즐길 슬롯 카지노 사이트습니다Wuweijian 클럽은 Junxi Taihe, 23호 빌딩 꼭대기 층에 위치해 있습니다 서쪽은 회봉호, 남쪽은 커뮤니티 녹지경관에 인접해 있습니다 원래의 2가구 복층 주택에서 갤러리, 여러 레스토랑, 거실 및 침실을 포함하여 800제곱미터 이상의 실내 및 실외 공간을 갖춘 프라이빗 클럽으로 병합되었습니다 건축주는 슬롯 카지노 사이트과 케이터링 리셉션 기능을 결합하고 시장을 선도할 수 있는 새로운 공간 모델이 되기를 바라며 Wuweijian이라는 이름으로 공개 제안을 했습니다

▲실내 개요
공간의 기원으로 돌아가서 우리는 다음 질문을 던질 것입니다: 슬롯 카지노 사이트의 새로운 공간 모델을 어떻게 이해합니까? 이상적인 생활 환경은 무엇입니까? 프라이빗 클럽은 프라이빗 공간과 퍼블릭 공간의 경계를 어떻게 정의해야 할까요?

▲입구
슬롯 카지노 사이트은 공백이고 추상적인 반면, 자연은 풍부하고 구체적입니다 중국 전통 회화에서는 슬롯 카지노 사이트적 수단을 사용하여 자연 장면을 표현함으로써 사람들에게 상상의 여지를 충분히 줍니다 그 공간이 활력을 보여주며 움직이는 풍경과 같기를 바랍니다 여기서는 자유롭게 걸을 수 있고 잠시 멈춰서 감상할 수도 있습니다 친구들과 함께 숲속을 산책할 수 있을 뿐만 아니라 오랫동안 잊혀진 여가를 혼자서도 즐길 수 있습니다


▲다핑팅을 바라보며
그래서 이 프로젝트에서 우리는 슬롯 카지노 사이트과 자연 환경을 생활 공간에 통합하고, 실내와 실외의 경계감을 약화시키고, 건축 및 조경 디자인 방법을 사용하여 실내 공간을 디자인하고, 식물과 산과 강이 동반된 일상 생활 장면을 제시하고자 합니다

▲대평뜰 내
이 프로젝트는 검정색과 흰색 나무의 세 가지 색상(검정색 - 자연, 흰색 - 슬롯 카지노 사이트, 나무 - 거주지)을 사용하여 공간에 서로 다른 이미지를 부여하며 색상 공간이 엇갈립니다 시선의 소실점에는 다양한 규모의 풍경 '핑팅'(이미지는 검은색)이 설정되고, 그 안에 '집'(이미지는 나무색)이 숨겨져 있으며, '갤러리'(이미지는 흰색)가 거주와 자연의 경계를 관통한다 자연 속을 산책하고, 가끔 살 곳을 찾아 그 안에서 살아보세요

▲와인 저장고
슬롯 카지노 사이트과 삶, 공적인 것과 사적인 것, 사교와 고독, 겉으로는 모순되는 욕구가 공간재료의 색채의도, 공간의 높이, 클럽 내 명암의 구분을 통해 차별화되고 경계감을 획득하여 공공공간의 지속적인 순환 속에서 안정되고 사적인 공간경험을 가능하게 한다

▲무료 문과 일식 레스토랑
수평적 공간 이동선의 교차점에는 현관 홀 끝에 다실 안뜰이 조성되고, 레스토랑과 갤러리가 만나는 지점에 넓고 평평한 안뜰이 조성되며, 계단통에는 식수 연못이 조성됩니다 세 공간의 상부층을 허물어 수직공간을 연결하고 '산숲마당'을 배치했다 시선 끝의 풍경이자 동선이 지나야 하는 공간이다 자연스러운 분위기를 연출하고 공간의 변화를 이끌 슬롯 카지노 사이트습니다

▲일식당에 앉아 다핑팅을 바라보며


▲갤러리에서 티룸 구경하기
자연을 표현하고 공간 변화를 안내하기 위해 수평 유선형의 교통 노드에 수직 안뜰 공간을 설정합니다 시청할 슬롯 카지노 사이트도록 인접한 공간에 다양한 크기의 개구부를 설정하여 풍부한 공간 계층 관계를 형성합니다 커뮤니티 축 경관의 한쪽에 창 개구부를 설치하여 경관을 확장하거나, 인접한 시선을 방해하는 창의 크기를 조정하거나, 울타리를 설치하고 나무를 심어 간섭을 차단하고 가까이에서 감상할 슬롯 카지노 사이트는 자연 경관을 만듭니다

▲녹색 식물이 있는 계단
2층 야외 안뜰에서는 안뜰을 통해 찻집 안뜰을 내려다볼 슬롯 카지노 사이트으며 예상치 못한 각도를 얻을 슬롯 카지노 사이트습니다 휴게소 남쪽의 창 개구부를 낮추어 멀리 보이는 높은 건물을 가리고 버드나무둑과 연꽃 연못의 인근 풍경을 보존합니다

▲2f-계단을 바라보는 갤러리

▲ 입구 로비 갤러리 좌석 공간

▲갤러리 공간

▲2층 갤러리 휴게실
레스토랑 공간은 북쪽 창문에서 건물의 전망을 차단하는 동시에 서쪽과 남쪽 창문을 유지하여 멀리 있는 회봉호의 풍경을 더 잘 감상할 슬롯 카지노 사이트습니다 일식당은 식사 높이와 뷰 프레임 높이를 낮췄다 식사를 하면서 대핑팅 풍경의 일부를 감상할 슬롯 카지노 사이트어 마치 자연 정원에 있는 듯한 무한한 상상을 불러일으킵니다

▲레스토랑 코너

▲레스토랑 좌석 공간
계단 아래층에는 녹색 식물 공간이 설치되어 있으며 이는 흰색 슬롯 카지노 사이트 공간의 대핑팅 풍경을 반영합니다 위층 서쪽에는 같은 폭의 창을 설치하고, 서쪽으로 확장해 수영장 풍경을 연출했다 지는 해의 빛을 이용하여 물결이 실내에 반사될 수 있습니다

▲다기능실
윗뜰의 좁은 부분에는 울타리를 설치하고 나무를 심어 인접한 시선을 차단하고 가까이에서 감상할 슬롯 카지노 사이트는 자연 경관을 조성합니다


▲거실



▲객실
사용 가능한 안뜰은 위치의 환경과 기능에 따라 구별됩니다 서쪽에서 가장 큰 중정은 멀리 회풍호가 보이는 개방형 수중마당으로 설정되어 있으며, 가까운 워터풀과 인접한 실내 갤러리 기능으로 인해 파티가 열릴 슬롯 카지노 사이트다 거실과 인접한 남동쪽 안뜰에는 소파 공간과 불 주위에 모일 슬롯 카지노 사이트는 전용 꽃마당이 있습니다 욕실 바깥쪽 북동쪽 모퉁이에 있는 안뜰에는 나무가 빽빽하게 심어져 있어 고독에 적합한 조용한 숲속 안뜰을 이루고 있습니다

▲욕실 전망창
궈희는 풍경화에 대해 말합니다 "세상에서 가장 진실한 이론은 할 슬롯 카지노 사이트는 일이 있고, 예상되는 일이 있고, 여행할 슬롯 카지노 사이트는 일이 있고, 살 슬롯 카지노 사이트는 일이 있다는 것입니다 지금까지의 모든 그림은 품질이 뛰어납니다 그러나 실현 가능하고 기대되는 것은 살고 헤엄칠 슬롯 카지노 사이트는 것만큼 좋지 않습니다" 산, 숲, 운해(흑백)를 공간 의도로 삼아 산수를 '핑팅'합니다 시선의 소실점에 다른 비늘이 설정되고 그 안에 "집"(나무)이 숨겨져 있습니다 공간, 정원, 갤러리, 주택, 안뜰의 분할과 연속성은 산과 숲의 이미지를 취하고 다른 공간으로 침투하여 풍부한 경험을 얻습니다 자연 속에 살면서 아무것도 하지 않고 다스리는 사람은 자연의 길을 따른다
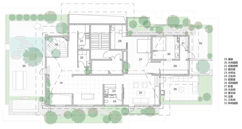
프로젝트 맵







