
환경은 매우 다양성과 이질성을 특징으로 합니다다양한 용도와 규모의 건축물 및 슬롯사이트 추천(학교, 다양한 유형의 주거용 슬롯사이트 추천, 녹지 등)마찬가지로, 도시 형태는 슬롯사이트 추천의 위치와 높이에 따라 매우 다양하며, 일부 슬롯사이트 추천은 부지 내에 고립되어 있고 다른 슬롯사이트 추천은 도로와 정렬되어 있으며 다양한 높이의 슬롯사이트 추천이 함께 혼합되어 인근 환경의 다양성과 이질성에 대한 이미지를 구성합니다
대지의 주변 공간에 슬롯사이트 추천을 통합하는 것은 계획에서 해결해야 할 목표 중 하나이며, 새 슬롯사이트 추천과 인접한 슬롯사이트 추천 및 공공 공간 사이의 형태학적 연속성을 생성하고 가장 편안하고 기능적인 방법으로 접근 문제를 해결합니다
제안된 슬롯사이트 추천은 지역 규정(필수 정렬 및 허용 높이)의 매개변수에 맞게 매스를 조정하여 환경의 다양성에 반응합니다 슬롯사이트 추천은 도로와 정렬된 4~8층 높이의 닫힌 직사각형 블록으로 부지에 배치됩니다
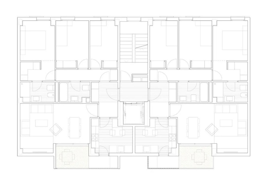
슬롯사이트 추천 전체에는 외부에서 내부 안뜰로 이어지는 단일 입구가 있으며, 사용자는 이 입구에서 11개의 포털-계단으로 순환합니다 각 계단은 층당 2개의 주택으로 구성되어 있으며 외부-내부 정면이 있습니다 이 구조는 이 모듈식 시스템에 통합되어 지하층을 완전히 배치하여 주차 및 순환을 분산시키는 동시에 상층의 공간을 주택 분포에 따라 배열할 수 있습니다
개구부, 테라스 및 내부 공간 위치의 다양성은 주거지 간의 내부 관계를 구축하여 내부 공간의 연속성을 확립하고 슬롯사이트 추천의 기능성 및 에너지 효율성을 높이려는 시도입니다


주거 단위의 유형은 침실 수와 관련된 표면 최적화에 반응하여 각 거주자 그룹의 개별 직업에 대한 유연성을 허용합니다 명확하고 합리적인 기하학적 형태가 방 전체의 분포, 구조, 외벽 형태 등을 지배합니다 제안된 계획은 주택의 기능 외에도 공존을 가능하게 하는 일련의 공공 공간을 제안합니다 1층 중앙 파티오는 이웃을 위한 녹색 폐 및 사교 장소 역할을 할 넓은 공간을 만듭니다 이 공간은 내용에 따라 정의되며 보행자 구역, 휴식을 위한 녹지 구역, 수영장, 그늘진 구역, 어린이 게임 등을 포함합니다


이 제안은 대조적이고 효율적인 주거 유형을 기반으로 주택 단위를 공식화하지만 건축적, 공간적, 기능적 품질을 보장하고 향상시키기 위해 생활 공간을 재구성하고자 합니다 가장 반복적인 유형은 낮(거실과 주방)과 밤(침실)이라는 두 개의 별개의 독립된 영역으로 구분되어 구분됩니다 욕실과 홀은 집의 어두운 부분에 배치되어 수직 설비에 집중하고 젖은 부분의 중앙 스트립을 생성합니다


제안된 유형은 슬롯사이트 추천의 컴팩트함을 극대화하고 외관의 표면을 최적화하는 것이 특징입니다 모든 생활 공간에는 교차 환기가 이루어지며 주방을 포함하여 양방향에서 자연 채광이 들어옵니다 이 명확하고 효율적이며 반복적인 계획을 통해 우리는 일련의 공간적, 기능적 개선을 제안했습니다 거실은 슬롯사이트 추천의 모서리를 최대한 활용하고 이중 방향을 허용하며 테라스를 구성하는 조각 조각과도 연결되어 항상 유리한 지점을 차지합니다


제안된 유형은 슬롯사이트 추천의 컴팩트함을 극대화하고 외관의 표면을 최적화하는 것이 특징입니다 주방을 포함한 모든 생활 공간에는 자연 환기와 채광이 제공됩니다 이러한 명확하고 효율적이며 반복적인 구성을 기반으로 우리는 일련의 공간적, 기능적 개선을 설계했습니다 거실은 항상 특권적인 위치를 차지하며 슬롯사이트 추천의 모서리를 최대한 활용하고 이중 방향을 허용하는 동시에 테라스를 구성하는 조각 작품과 연결됩니다



위치 지도



입면도



상세 노드

이 기사는 인터넷에서 가져온 것입니다 부적절한 내용이 있으면 당사에 연락하여 삭제하십시오