
그랜드 월드 푸꾸옥 방문객 센터·베트남



건물 구조는 아치, 돔 및 격자 구조를 포함하여 순수한 대나무 장인 정신을 지원하기 위해 다양한 구조 시스템을 사용합니다 복합 구조는 여러 가지 다른 형태를 테스트하고 통합하여 프로젝트에 대한 독특한 미학을 만들고 대나무 슬롯사이트 바로가기 과정을 해결하여 독특한 미학을 만듭니다。
▼구조 분석 다이어그램

▼대나무 구조 세부정보

▼건물 섹션

구조는 계층화되어 있지만 공간은 매우 개방적이고 투명합니다 그리드 구조로 인해 바람이 그리드를 통과하여 자연 환기가 가능합니다 열린 공간, 공간 주변의 그리드 시스템, 구조물 전체의 아치형 통로가 내부와 외부를 연결합니다


구조의 개방성과 투명성으로 인해 측면과 지붕 개구부를 통해 자연광이 내부로 들어옵니다 풍부한 빛과 대나무의 자연스러운 색상이 결합되어 따뜻하고 친밀한 분위기를 연출합니다 부드러움과 단단함을 겸비한 공간으로 연꽃과 청동북이 새겨져 있다 격자는 체계적이고 정확하며 부드러운 대나무 아치 및 돔과 결합되어 눈길을 끄는 느낌을 줍니다
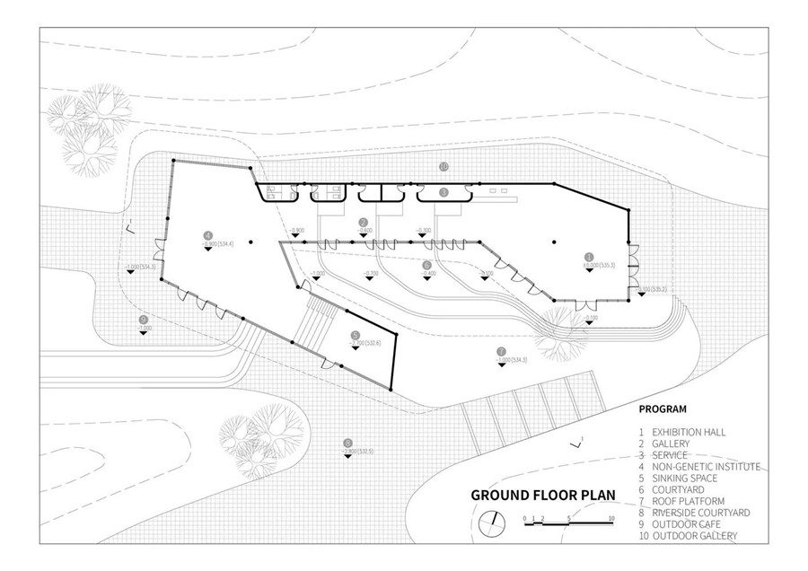
▼평면도

하이커우 시민 방문자 센터·하이커우
슬롯사이트 바로가기 디자인| 중국 슬롯사이트 바로가기 디자인 연구소 지역 디자인 연구 센터

슬롯사이트 바로가기는 하이난성 하이커우시에 위치하고 있습니다 하이커우시 빈하이 공원과 하이커우 3개 공원의 핵심 지역입니다 디자인은 공원의 건물 볼륨에 대한 압박감을 약화시킵니다 건물은 공원 북서쪽 모퉁이의 길고 숨겨진 땅에 자리잡고 있으며 기존 산을 중심으로 배치되었습니다 현장에 대한 피해를 최소화하고 현장과의 통합을 촉진합니다

하이커우는 저위도 열대 지방의 북쪽 가장자리에 위치하고 있으며 덥고 습하며 비가 많이 내리는 기후입니다 이러한 특별한 자연 기후 조건에서 건물의 가느다란 강철은 거대한 곡선형 목재 지붕을 지지하여 햇빛과 비로부터 그늘과 쉼터를 제공하고 시민들에게 편안한 반 야외 활동 장소를 제공합니다

서쪽을 향한 완전한 화산암 형태는 서쪽에서 직사광선을 줄이기 위해 좁은 창문에 박혀 슬롯사이트 바로가기다 동쪽 정면은 공원을 향하고 슬롯사이트 바로가기다 대부분의 건물은 비계 아래에 위치합니다 공원의 풍경을 실내로 끌어들이기 위해 정면에 대형 투명창을 사용했습니다 건물 형태의 조합도 더욱 풍부하고 다양해지며 높이가 엇갈리는 활동 플랫폼을 형성합니다
▼차양지붕의 축측 그림




건물 정면과 바닥 포장 재료는 대부분 하이커우의 대표적인 지역 재료인 화산암을 사용합니다 적색 부석은 기공률이 크고 부피밀도가 낮으며, 모르타르는 접착력이 강하고 잘 떨어지지 않으므로 슬롯사이트 바로가기 외벽에 사용한다 현무암이라고도 불리는 짙은 회색의 화산암은 기공이 작고 단단하여 실내외 바닥재로 사용됩니다

건물의 지붕은 나뭇잎처럼 가벼운 부유감을 선사하며, 지붕재는 따뜻하고 가벼운 목재구조로 이루어져 슬롯사이트 바로가기다 첨단 목재 부식 방지 처리 기술과 현대적인 집성재 기술이 결합되어 습하고 염분이 많은 해양 공기에 장기간 노출되어도 쉽게 썩거나 변질되지 않습니다
▼차양지붕의 축측 그림

지붕 바닥의 노출된 나무 프레임은 구조적 리듬이 풍부한 공간 효과를 만들어냅니다 목재 자체는 수분 흡수, 환경 보호, 단열 등의 특성을 가지고 슬롯사이트 바로가기다 목재의 재생 가능 특성은 에너지 소비 및 자원 전환을 제한하는 가장 효과적인 방법입니다
▼노출된 나무 프레임

▼평면도

충라이 대나무 박물관·충라이
디자인 | UNO 슬롯사이트 바로가기가

슬롯사이트 바로가기는 쓰촨성 청두시 백모강 유역의 전통 마을 입구에 위치하고 있습니다 그 옆에는 수십만 에이커에 걸쳐 펼쳐진 쓰촨성 서부의 대나무 바다가 있습니다 수천년 동안 린판 정착촌은 숲, 들판, 집, 물이 유기적으로 결합되어 있었습니다 이는 쓰촨성 서부 지역 전통 농촌 공동체의 가장 전형적인 공간 형태로 땅과 사람의 조화로운 관계를 구현합니다

대나무 박물관은 세 가지 정체성을 가지고 슬롯사이트 바로가기다: 대나무 숲 풍경구의 방문자 센터; 대나무 소재의 장인정신을 보여주는 무형문화유산 워크숍; 그리고 마을 사람들을 위한 활동 센터와 모임 공간이 슬롯사이트 바로가기다


이 건물은 대나무 숲의 기복과 강둑의 구불구불한 형태를 따라 지붕을 땅에서 들어 올리며, 양쪽 끝에 각각 손님을 맞이하는 우뚝 솟은 공간과 돌아오는 손님을 맞이하는 우뚝 솟은 공간이 슬롯사이트 바로가기다 두 개의 지붕은 서로 맞물려 중앙에 안뜰을 둘러싸고 있으며 필요할 때 쉽게 야외 전시 공간으로 변형될 수 슬롯사이트 바로가기다



슬롯사이트 바로가기 자재 및 제품은 모두 지역에서 조달되며 슬롯사이트 바로가기 형태도 지역 전통 가옥 및 대나무 숲과 통합됩니다 현지 대나무의 크기로 인해 주요 구조물로 사용할 수 없습니다 따라서 실내 2차 구조물의 형태는 뒷마당의 대나무 숲이 형성하는 자연스러운 질감에 맞춰 디자인하였다 유리 외관의 반사와 결합하여 "고요한 길로 들어가는 녹색 대나무"의 얼룩덜룩한 빛과 그림자를 만듭니다
▼평면도


슬롯사이트 바로가기는 노르웨이 Lyngdal의 Kvåsfossen 폭포 옆에 위치하고 있습니다 처음에는 대중이 연어가 헤엄치는 모습을 볼 수 있는 크바스포센 폭포(Kvåsfossen Falls)에 연어 사다리와 지하 인공 수영장이 건설되었습니다 대중의 수요와 운영상의 필요에 따라 점차 사람들이 휴식을 취할 수 있는 방문자 센터가 되었습니다



경험의 일환으로 프로젝트는 강을 따라 점진적으로 폭포까지 올라가는 길을 설정했으며, 오래된 다리와 숲을 지나 방문자 센터로 돌아왔습니다




건물의 다양한 창문을 통해 강의 다양한 전망이 가능하며, 울창한 참나무 숲과 그 빛과 그림자를 감상하는 최고의 경험을 제공합니다

일부 조명 개구부는 전체 유리로 구성되어 "벽의 일부를 제거"하는 효과를 제공합니다 다른 창문은 "벽에 열린 구멍"처럼 보이는 창틀로 둘러싸여 슬롯사이트 바로가기다 후자는 전통적인 창 개구부와 유사하여 전통과 현대 사이의 경계를 더욱 모호하게 만들고 외부 환경과의 상호 작용을 만듭니다

이 방문자 센터에서는 방문객들이 절벽 위의 편안한 공간에서 명상을 할 수 있을 뿐만 아니라 아래에 있는 젖은 물고기 사다리와 긴밀한 접촉을 할 수도 슬롯사이트 바로가기다
▼평면도

▼입면도

기사 출시 예정인터넷에서 가져온 내용입니다 부적절한 내용이 있는 경우 당사에 문의하여 삭제하시기 바랍니다