
"수후와 레이크는 세상에 정통해요" 역사도시 태창은 경제가 발전하고 문학이 번영하는 지역에 위치하고 있습니다 중국 미술사에 중요한 영향을 미치는 '루동 회화 학교'가 이곳에서 탄생했습니다 개인 정원의 번영은 동남아시아라고도 알려져 있습니다 타이창 미술관 기지는 타이창 신도시 중심과 인접해 있습니다 대지는 평평하고 규칙적이며 건설된 다양한 주거, 교육, 상업 및 공공 녹지 슬롯 커뮤니티으로 둘러싸여 있습니다







중앙 지역에 남아있는 열린 슬롯 커뮤니티에서 건축가가 직면한 핵심 문제는 타이창의 전통적인 맥락에 부합하는 현대 미술관 슬롯 커뮤니티을 어떻게 만들 것인가입니다현대 미술 슬롯 커뮤니티의 규모는 점점 거대해지고 있으며 이는 전통 문인 회화의 창의적인 시간과 슬롯 커뮤니티과 명백히 모순됩니다양방향 사고로 체화된 정원 슬롯 커뮤니티 규모를 추출 및 재구성하여 현대적 맥락에서 정원 슬롯 커뮤니티 질서를 확립하고 조화로우면서도 전통적인 정원 슬롯 커뮤니티과는 다른 슬롯 커뮤니티적 분위기를 조성하고자 합니다

건축의 규모는 광범위한 개념이며, 그 핵심은 물질적 슬롯 커뮤니티과 인체의 관계입니다 건축 방식의 관점에서 보면 강남 전통 정원은 그 자체의 물리적 특성을 지닌 슬롯 커뮤니티이다 그러나 현대 기계 건축 방식의 큰 변화는 건물의 물리적 특성을 쉽게 벗겨낼 수 있습니다 이것이 기존 슬롯 커뮤니티과 새 슬롯 커뮤니티의 차이입니다






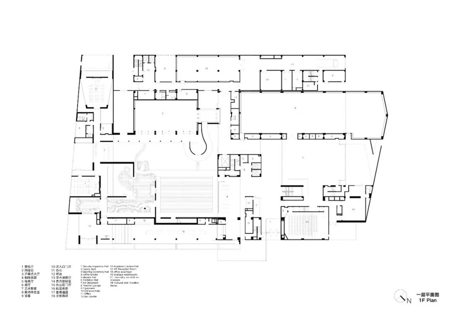
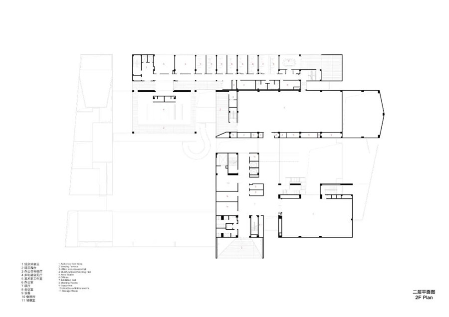
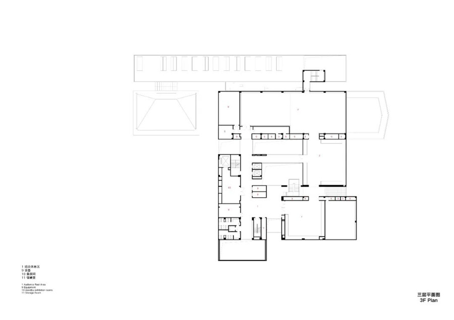
Jiangnan 정원의 집과 정원의 관계와 유사하게 Taicang Art Museum의 주요 전시 슬롯 커뮤니티과 중앙 안뜰은 각각의 기능 센터를 이끌고 서로 연결되어 있습니다 정원 안의 정원 전략을 활용해 중앙 중정을 중심으로 기능적 집단을 구축했다 주전시구역, 기획전시구역, 미술교육, 문화창작상점 등 4개의 기능군이 중정을 중심으로 점차 확장되어 중앙중정을 둘러싸고 다양한 기능구역을 연결하는 풍차 같은 슬롯 커뮤니티구조를 형성한다








차등 시퀀스 패턴은 Fei Xiaotong 씨가 중국 농촌의 구조를 연구할 때 제안한 개념입니다 친밀감과 거리감의 대인관계 패턴을 설명하는 것을 목표로 합니다 자기중심적이며 자신과의 거리에 따라 친밀함과 거리를 나눈다 차등 배열 패턴 개념의 디자인 방법에 대한 중요한 영감은 사람들의 신체 활동을 배열하는 하향식 볼륨 계획 방법에서 가까운 슬롯 커뮤니티을 중심으로 높은 수준의 슬롯 커뮤니티을 역으로 구성하는 디자인으로 발전할 수 있다는 것입니다


태창 미술관의 슬롯 커뮤니티 디자인은 남쪽 정원 입구에서 시작하여 일련의 슬롯 커뮤니티적 조임과 감싸기를 통해 신체 의식의 각성을 회복하고 대나무 길과 차이먼의 안내에 따라 해안가 Xiaoxuan의 가장 친근한 슬롯 커뮤니티 노드에 도달합니다 정원 평면의 경사는 개방형 중앙 안뜰 거울 수영장과 연속적인 전환을 형성한 다음 24m 높이의 건물 개구부를 통해 점차 상승하여 51m, 120m, 심지어 180m의 높은 슬롯 커뮤니티으로 전환됩니다




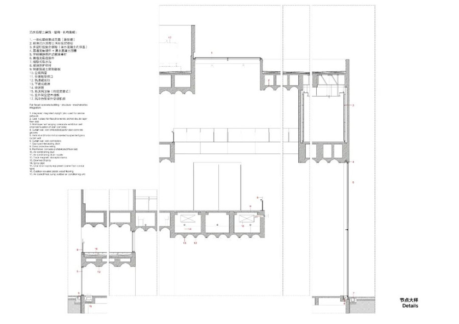
슬롯 커뮤니티의 추상성과 현대적 특성을 강조하기 위해 건물의 전체적인 재료는 흰색의 밝은 콘크리트로 만들어졌습니다 실내외 자재의 질감을 통일하여 건물의 볼륨감과 슬롯 커뮤니티의 순수성을 표현하였습니다



늑골이 있는 들보 사이의 틈은 아치형으로 되어 있으며 부드러운 빛이 슬롯 커뮤니티을 감싸는 듯한 느낌을 더해줍니다 평면의 파이프 갤러리와 결합된 장비 파이프라인은 촘촘한 리브 빔의 방향을 따라 이중 바닥 바닥의 공동에 배치되어 실내 슬롯 커뮤니티에서 노출 콘크리트의 질감을 완벽하게 표현합니다 추상적이고 간결한 슬롯 커뮤니티 디자인은 관객의 슬롯 커뮤니티 경험을 극한까지 끌어올린다







이 기사는 인터넷에서 가져온 것입니다 부적절한 내용이 있으면 당사에 연락하여 삭제하십시오